PALAITALIA Enit
La dimora di Casa Sanremo
Il Palafiori di Sanremo si propone come spazio congressuale ed espositivo, destinato ai convegni, alle manifestazioni e agli eventi. Inaugurato nel mese di giugno del 2006, è ubicato nel cuore della città, a due passi dal Teatro Ariston e dal centro storico.
Il Palafiori nei suoi anni di attività ha già ospitato numerose manifestazioni ed importanti congressi. Questa ampia struttura modulabile consente di realizzare contemporaneamente, nella più perfetta armonia, qualsiasi tipo di evento (congressi, convegni, convention, seminari, esposizioni, lanci pubblicitari di prodotti, mostre, ecc.) nonché banchetti, cene di gala e spettacoli. Dotato dei più avanzati mezzi di comunicazione e di tutti i confort necessari per la perfetta riuscita di un evento (parcheggio interno, montacarichi, scale mobili, facili accessi per soggetti diversamente abili), il Palafiori è stato concepito come una struttura d’avanguardia, estremamente flessibile, al servizio dell’evento.
Sala Plenaria Ninfea
Caratteristiche:
- Capienza n. posti 600
- Capienza mq. 690
- Altezza min. 3,85mt
- Altezza max. 5,60mt
- Colonne si
- Luce naturale/Oscuramento si
- Lavagna fogli mobili e luminosa si
- Tavolo oratore si
- Aria condizionata si
- Area retropalco 37mq
- Sala regia si
- Impianto diffusione sonora n.1
- Basi microfoniche da tavolo n.4
- Base microfonica da podio n.1
- Radiomicrofoni uhf ad impugnatura n.2
- Radiomicrofoni uhf a spilla n.2
- Lettore cd multiplo n.1
- Doppia piastra di registrazione n.1
- Rete cavi VGA per PC (podio-tavolo-regia) si
- Matrice di commutazione audio/video n.1
- Matrice di commutazione grafica n.1
- PC per gestione matrici n.1
- Telecamere motorizzate n.3
- Lavagna luminosa elettronica n.1
- Codec per videoconferenza n.1
- Plasma 65″ n.7
- Monitor LCD 17″ (tavolo oratori) n.3
- Videoregistratori VHS/DVD n.2
- Videoregistratore con hard disk/mini-dv n.1
- Videoproiettore LCD n.1
- Schermo motorizzato 16/9 mis. 400 x 200 cm n.1
- Impianto traduzione simultanea n. 200 ricevitori – n.4 posti interpreti doppi
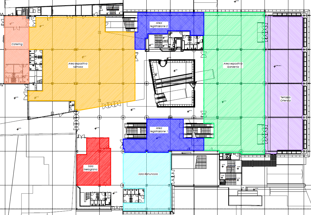
Sala Ranuncolo
Caratteristiche:
- Capienza n. posti 150
- Capienza mq. 180
- Altezza 2,70
- Luce naturale/Oscuramento si
- Tavolo oratore si
- Aria condizionata si
- Sala regia si
- Impianto diffusione sonora 800W n.1
- Basi microfoniche da tavolo n.4
- Base microfonica da podio n.1
- Radiomicrofoni uhf ad impugnatura n.2
- Lettore cd n.1
- Piastra di registrazione n.1
- Rete cavi VGA per PC (podio-tavolo-regia) si
- Matrice di commutazione audio/video n.1
- Matrice di commutazione grafica n.1
- PC per gestione matrici n.1
- Telecamere motorizzate n.3
- Monitor LCD 19″ (tavolo oratori) n.2
- Videoregistratore VHS/DVD n.1
Sala Papavero
Questa area, affacciata sul centro della città, costituisce un prezioso supporto alla sala conferenze Ninfea, alla quale è collegata tramite un corridoio interno.
E’ ideale per l’organizzazione di coffee break, lunch e cocktail.
Caratteristiche:
- Superficie 302 mq
- Luce naturale si
- Terrazza Adiacente si
- Aria condizionata si
Sala Narciso
Questa ampia area, collegata ad una attrezzatissima cucina di 133 mq., è lo spazio ideale per l’organizzazione di cene di gala, aperitivi e buffet.
L’ampia superficie permette anche di utilizzare questa area per esposizioni, lanci di prodotto, rassegne, etc..
Caratteristiche:
- Superficie 800 mq.
- Capienza posti al tavolo 750
- Capienza posti a buffet 850
- Luce Naturale si
- Aria condizionata si
- Colonne si
- Cucina si – 133 mq.
Sala Expo Gardenia
La sala Gardenia offre un ampio spazio luminoso che si apre sull’incantevole terrazza Ortensia (500 mq.) sovrastante il cuore della città.
Ideale per l’allestimento di stand espositivi, mostre, workshop, spettacoli, dispone di un ingresso diretto alla sala conferenze Ninfea ubicata al piano superiore.
Caratteristiche:
- Superficie 840 mq.
- Luce naturale si
- Aria condizionata si
- Terrazza adiacente si
- Colonne si
Le Terrazze
Il Palafiori dispone di due meravigliose terrazze allestite con essenze mediterranee, dove è possibile cogliere in ogni periodo dell’anno un tiepido raggio di sole, godendo di una splendida vista sul centro della città.
Le terrazze, concepite per favorire gli incontri ed offrire un po di relax, sono ideali per ospitare coffe-break all’aperto, buffet e cocktail, nonché stand espositivi e gazebo.
Caratteristiche:
- Terrazza Ortensia, 1° piano – 500mq.
- Terrazza Anemone, 2° piano – 300mq.
Sala Museale
All’interno del Palafiori è presente anche una sala museale all’avanguardia di 900 mq. realizzata dalla ditta Scaletti di Torino, per parte edile, e dalla Goppion di Milano, azienda leader in campo museale con lavori per il British Museum, il Louvre, .. ,
La sala museale è articolata in un percorso espositivo attorno ad una camera espositiva centrale, con parti mobili, bacheche di massima sicurezza per accogliere opere di grande valore, illuminazione modulabile ed un impianto di diffusione sonora.
La sala dispone di un caveau dedicato.

















